Емкости для хранения газового конденсата это сосуды, работающие под давлением. Горизонтальный или вертикальный герметичный бак со сферическими днищами, имеющий патрубки для подвода и отбора может располагаться на поверхности и в грунте.
Технические характеристики продукции
Наше предприятие в Рыбинске имеет лицензию на изготовление оборудования, работающего под давлением. Емкости для сбора газового конденсата на месторождении и при эксплуатации газового оборудования отличаются по конструкции и размерами.
Технические характеристики наземных горизонтальных резервуаров
| Параметры | РГСН-3 | РГСН-5 | РГСН-10 | РГСН-25 | РГСН-50 | РГСН-75 | РГСН-100 |
|---|---|---|---|---|---|---|---|
| Вместимость, куб.м. | 3 | 5 | 10 | 25 | 50 | 75 | 100 |
| Давление рабочее | налив | ||||||
| Внутренний диаметр, мм |
1400 | 1600 | 2200 | 2760 | 3000 | ||
| Длина, мм | 2550 | 2785 | 3335 | 4990 | 10100 | 14400 | |
| Ширина, мм | 1700 | 1800 | 2400 | 3000 | 3435 | 3440 | |
| Высота (при транспортировке), мм |
1955 | 2050 | 2650 | 3400 | 3650 | ||
| Толщина корпуса/днища, мм |
4/6 | 4/8 | 6/12 | ||||
| Масса, кг | 1400 | 1540 | 2520 | 4340 | 5880 | 7640 | 11900 |
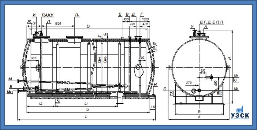
| Назначение и диаметр штуцеров (мм) | |||||||
| А | Люк замерный (150) | Вход продукта (80) | |||||
| Б | Вход продукта (80) | Выход продукта (80) | |||||
| В | Выход продукта (80) | Вход теплоносителя (40) | |||||
| Г | Вход теплоносителя (50) | Выход теплоносителя (40) | |||||
| Д 1, 2 | Для механизма управления хлопушкой (150) |
Для вентиляционной трубы (150) / Для предохранительного клапана (50) |
|||||
| Е | Для вентиляционной трубы (50) | Люк замерный (150) | |||||
| Ж | Дренаж (G3/4-B) | Для механизма управления хлопушкой (150) | |||||
| И | Люк (800) | ||||||
| К | Выход конденсата (50) | Грязе-спускная пробка | |||||
Технические характеристики подземных горизонтальных резервуаров
| Параметры | РГСП-3 | РГСП-5 | РГСП-10 | РГСП-25 | РГСП-50 | РГСП-75 | РГСП-100 | |
|---|---|---|---|---|---|---|---|---|
| Вместимость, куб.м. | 3 | 5 | 10 | 25 | 50 | 75 | 100 | |
| Давление рабочее | налив | |||||||
| Внутренний диаметр, мм | 1400 | 1900 | 2200 | 2760 | 3000 | |||
| Длина, мм | 2210 | 2390 | 3430 | 4710 | 9425 | 10910 | 13910 | |
| Ширина, мм | 1560 | 2060 | 2360 | 2920 | 2960 | 3200 | ||
| Высота (при транспортировке), мм | 1715 | 2280 | 2580 | 3045 | 3285 | |||
| Уровень засыпки (высота горловины), мм | 1200 | 1272 | 1200 | |||||
| Толщина корпуса/днища, мм | 4/6 | 8/8 | 8/10 | 8/12 | ||||
| Масса, кг | 1090 | 1860 | 2860 | 4550 | 7130 | 8900 | 10300 | |
| Назначение и диаметр штуцеров (мм) | ||||||||
| А | Для наполнения (80) | Для наполнения (100) | ||||||
| Б | Для раздачи (80) | Для раздачи (100) | ||||||
| В | Зачистной (50) | |||||||
| Г | Для вентиляции (50) | Люк-лаз (800) | ||||||
| Д | Люк замерный (50) | Люк замерный (150) | ||||||
| Е | Для входа теплоносителя | Для вентиляции (50) | ||||||
| Ж | Для выхода теплоносителя | Для сигнализатора уровня (М20х1,5) | ||||||
Технические характеристики резервуаров горизонтальных двустенных - РГД, РГСД
| Параметры | РГД-25 | РГД-50 | РГД-75 | РГД-100 | |||
|---|---|---|---|---|---|---|---|
| Вместимость, куб.м. | 25 | 50 | 75 | 100 | |||
| Давление рабочее | атмосферное | ||||||
| Внутренний диаметр корпуса, мм | 2355 | 2740 | 3040 | ||||
| Внутренний диаметр резервуара, мм | 2320 | 2700 | 3000 | ||||
| Длина, мм | 6510 | 9285 | 8700 | 11500 | |||
| Ширина, мм | 2555 | 2940 | 3240 | ||||
| Толщина корпуса внутр./наружн., мм | 4/6 | 6/6 | |||||
| Толщина днищ внутр./наружн., мм | 8/8 | 10/10 | |||||
| Масса, кг | 6330 | 9400 | 12500 | 19000 | |||
«Уральский Завод стальных конструкций» (УЗСК) производит в Рыбинске все виды резервуаров для сбора и хранения газового конденсата, включая двустенные. Если вы планируете купить оборудование по выгодной цене, узнайте об условиях продаж на сайте производителя.
Заполните форму заказа






